Аренда помещения свободного назначения

495 000 ₽/мес

900 ₽ за м²/мес.

550 м²
Площадь
2
Этажность

Поделиться

Добавить в избранное

Сдам в аренду новое отдельно стоящее здание с новым качественным ремонтом и привлекательным фасадом.
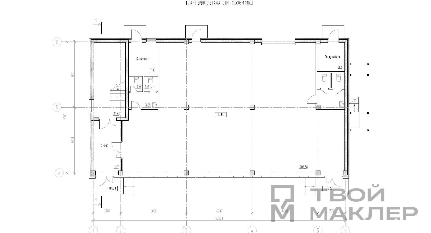
Планировка на 1 этаже открытого типа, на втором этаже - кабинетная, с площадью от 11 до 35кв.м.
Помещения очень светлые, т.к. много больших окон по всему периметру здания.
Большая парковка.
Остановка общественного транспорта в 2 минутах пешком.
Круглосуточный доступ.
Газовое отопление сэкономит ваши расходы зимой.

Адрес: г. Пенза, ул. Пролетарская, д. 49.
Площадь 550кв.м., по 275кв.м. на каждом этаже.
 ​​​
Стоимость 495000р. (900 руб/кв.м.) + коммунальные платежи

Дата обновления: 5 декабря 2025