Продажа дома

Пензенская область, село Бессоновка, Коммунальная улица, 14

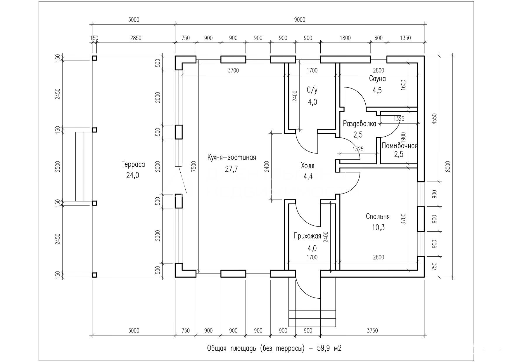
60 м²
Площадь
1
Этажность
33 сот
Площадь участка

5 920 000 ₽

98 832 ₽ за м²

ID объявления 12597646

Поделиться

Добавить в избранное

id:848.
Ваш идеальный дом ждёт вас!

Строительная компания «Brilman-stroy» предлагает построить дом вашей мечты — мы реализуем проекты любой сложности! Срок строительства дома с чистовой отделкой — от 2 до 4 месяцев, работы ведутся круглогодично. Возможно частичное строительство, а также реализация как типового, так и индивидуального проекта.

Представьте: тихий и красивый уголок в Бессоновке (ул. Коммунальная, 14), где на участке в 33 сотки расположится ваш новый дом. Рядом протекает небольшая речка, а сам участок уже газифицирован и обеспечен электричеством.

Характеристики дома:
* общая площадь — 59, 9 кв. м;
* жилая площадь — 38 кв. м;
* терраса — 24 кв. м.

В стоимость 5 920 000 рублей входит:
* участок в 33 сотки;
* прочный фундамент на железобетонных сваях;
* несущие стены с утеплением (минеральная вата 150 мм) и паро-гидроизоляцией;
* кровельное покрытие;
* оконные конструкции;
* внутренняя отделка (имитация бруса, декоративная штукатурка);
* натяжные потолки с монтажом светильников и люстр;
* ламинат;
* оборудованный санузел (плитка, тёплый пол, ванная, унитаз, раковина);
* межкомнатные двери;
* входная металлическая дверь с терморазрывом;
* собственная скважина;
* вентиляция (2 точки);
* система отопления (электрические конвекторы);
* электрификация;
* автономная канализация.

Также мы установим розетки, выключатели и наружное освещение.

Этот дом — идеальное место для жизни в гармонии с природой, где вы сможете наслаждаться спокойствием и уютом. Здесь есть всё необходимое для комфортной жизни…

Дата обновления: 14 марта 2026