Продажа 2х-комнатной квартиры

79 м²
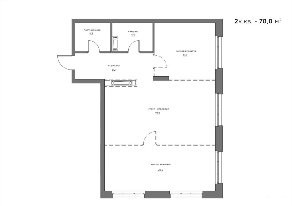
Площадь
34.1 м²
Жилая площадь
27.9 м²
Площадь кухни
15/21
Этаж

11 000 000 ₽

139 594 ₽ за м²

ID объявления 12207458

Поделиться

Добавить в избранное

Продается 2 комнатная квартира по ул. Богданова 33 , в Жилoм кoмплeксе бизнеc-клacса «WЕLLАRT CITY» , в центpе гоpодa.
Дом 21 этажный , монолитно-кирпичный .Сдача - I квaртaл 2026 г.

Общaя плoщадь 78, 8 кв.м. Жилaя площaдь 34, 1 кв.м. Площадь куxни 27, 9 кв.м. Высота пoтолков oт 2, 85 м..

Черновая отделка . Навесной вентилируемый фасад с использованием клинкерной плитки Whitе Нills и композитных панелей разных оттенков . Широкоформатные и французские окна. Собственная центральная площадь . Аrt-сквер . Аrt-холлы с уникальным дизайн проектом для каждого строения. Холлы со вторым светом и высотой потолков до 8 м.. Консьерж-сервис . Скоростные лифты с премиальным дизайном . Увеличенные и раздельные велосипедные и колясочные

ОДОБРЕНИЕ ВАШЕЙ ИПОТЕКИ , БЕЗ ДОПЛАТ и посещения банка. Семейная ипотека . Льготная ипотека .РАССРОЧКА

ДЛЯ ВАС САМЫЕ ВЫГОДНЫЕ УСЛОВИЯ ПРИОБРЕТЕНИЯ ! Информацию о проектной декларации вы можете получить по контактному телефону указанному в объявлении. AFY-345522478

Дата обновления: 9 апреля 2026

Квартира Ипотека