Продажа 2х-комнатной квартиры

Пензенская область, Пенза, ул. Пожарского, 8

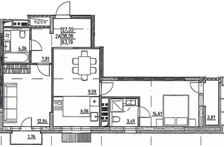
63 м²
Площадь
27.1 м²
Жилая площадь
15.7 м²
Площадь кухни
9/14
Этаж

6 250 000 ₽

98 893 ₽ за м²

ID объявления 12343313

Поделиться

Добавить в избранное

Продается 2 комнатная квартира ул. Пожарского 8 , в ЖК Форт .
Новый 14-этажный кирпично-монолитный дом . Срок сдачи 4 кв. 2027 года

В наличии 2 комнатная квартира :
Общая площадь 63.19 кв.м. Жилая площадь 27, 15 кв.м. Кухня 15, 65 кв.м. Лоджия 2, 87 кв.м.

Черновая отделка .
ЖК "Форт" , предлагает своим резидентам среду, где природная красота сочетается с премиальным благополучием. Функциональные игровые зоны распределены с учётом возрастных групп. Спортивная зона включает в себя площадки для стритбола, воркаута и паркура.

Крышная котельная ;Функциональные зоны отдыха ; Двор без машин ; Развитая инфраструктура ;Ландшафтное озеленение.


ВСЕ виды оплаты . Семейная ипотека .Сертификаты .Рассрочка.
Поможем с одобрением Вашей ипотеки. Информацию о проектной декларации вы можете получить по контактному телефону указанному в объявлении. AFY-345527073

Дата обновления: 29 декабря 2025

Квартира Ипотека