Продажа 3х-комнатной квартиры

Пензенская область, Пенза, улица Яшиной, 16

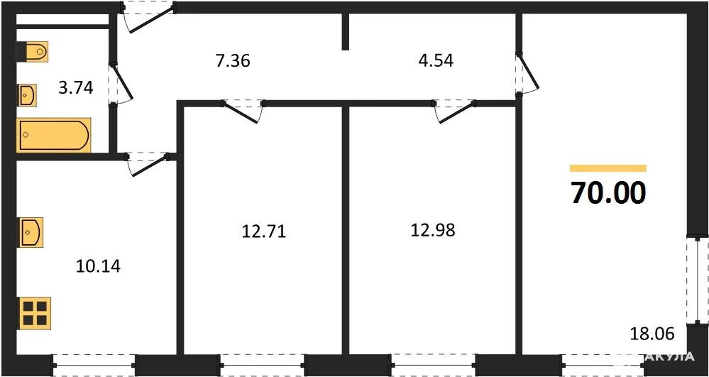
70 м²
Площадь
43.8 м²
Жилая площадь
10.1 м²
Площадь кухни
10/18
Этаж

7 630 000 ₽

109 000 ₽ за м²

ID объявления 12503096

Поделиться

Добавить в избранное

Продается 3 комнатная квартира ул. Яшиной 16 , С РЕМОНТОМ в ЖК «ЛУГОМЕТРИЯ» , район Арбеково . Монолитно-каркасный 18 этажный дом . ДОМ СДАН.

Общая площадь 70 кв.м.. Жилая площадь 43, 75 кв.м.. Кухня 10, 14 кв.м.. С/у совмещенный . Имеется выбор этажей и планировок.

Квартира с готовым ремонтом: обои под покраску, ламинат 33 класса, натяжные потолки с точичными светильниками, керамическая плитка в санузле Kerama Marazzi, установлена вся сантехника, межкомнатные качественные двери, кухонный гарнитур с посудомоечной машиной, современный ремонт, светлый или серый оттенок пластика для фасада кухни великолепно сочетается с деревом, фурнитура для кухни элитного класса BLUM, встраиваемая техника, встроенная вытяжка, варочная панель.

Семейная ипотека . Рассрочка . Любая форма оплаты . AFY-345530851

Дата обновления: 20 февраля 2026

Квартира Ипотека