Продажа 3х-комнатной квартиры

Пензенская область, Пенза, улица Яшиной, 2

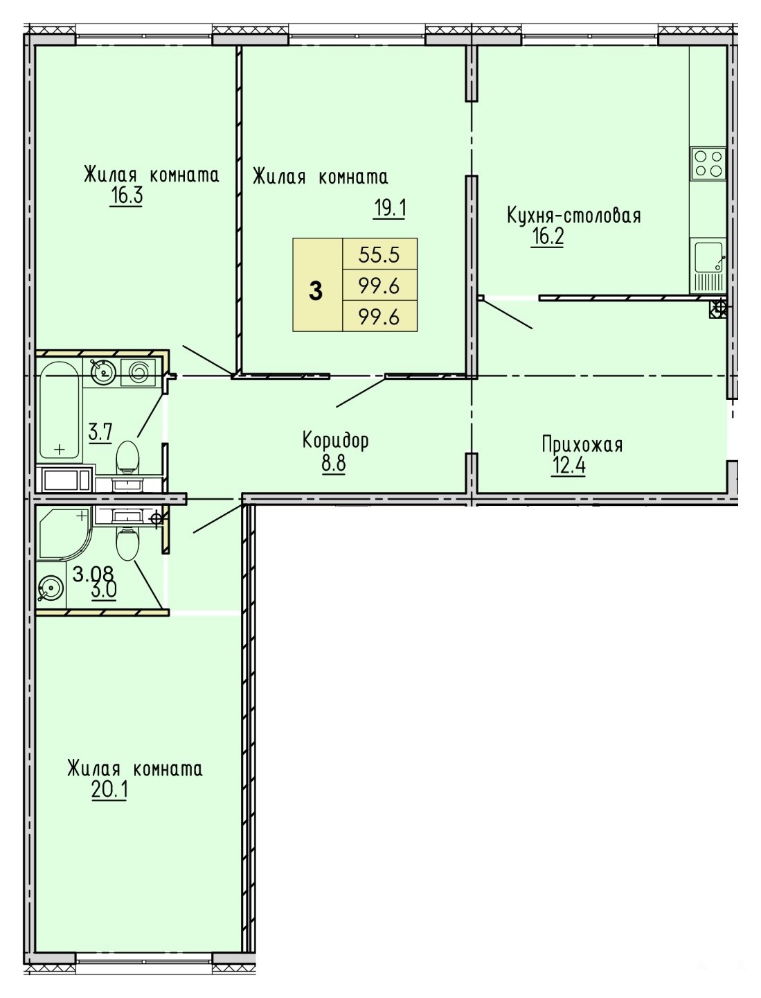
100 м²
Площадь
55.5 м²
Жилая площадь
16.2 м²
Площадь кухни
12/18
Этаж

9 500 000 ₽

95 382 ₽ за м²

ID объявления 12422163

Поделиться

Добавить в избранное

Продается 3 комнатная квартира ул. Яшиной 2 , С РЕМОНТОМ в ЖК «ЛУГОМЕТРИЯ» , район Арбеково . Монолитно-каркасный 18 этажный дом . ДОМ СДАН.

Общая площадь 99, 6м2. Жилая площадь 55, 5м2. Кухня 16, 2м2 .
С/у раздельный .

Квартира с готовым ремонтом: обои под покраску, ламинат 33 класса, натяжные потолки с точичными светильниками, керамическая плитка в санузле Kerama Marazzi, установлена вся сантехника, межкомнатные качественные двери, кухонный гарнитур с посудомоечной машиной, современный ремонт, светлый или серый оттенок пластика для фасада кухни великолепно сочетается с деревом, фурнитура для кухни элитного класса BLUM, встраиваемая техника, встроенная вытяжка, варочная панель.

Все виды оплаты: наличные, ипотека, любые сертификаты.

ОДОБРЕНИЕ ВАШЕЙ ИПОТЕКИ , без посещения банка. Ипотека с гос.поддержкой . Льготная ипотека .

ДЛЯ ВАС САМЫЕ ВЫГОДНЫЕ УСЛОВИЯ ПОКУПКИ !

Дата обновления: 28 января 2026

Квартира Ипотека